Cookie-Einstellungen Treveris Zwei - Wohnung 04 Cookie-Einstellungen Cookie-Einstellungen

Haus 1 - Wohnung 4

Für Familien und Senioren geeignet...

99,91 m2 (mit Terrasse)

Unsere vierte Wohnung bietet mit 99,91 m2 viel Platz und Komfort für alle Familien, die nicht nur eine moderne und gemütliche Unterkunft suchen sondern auch Platz zur Entfaltung...
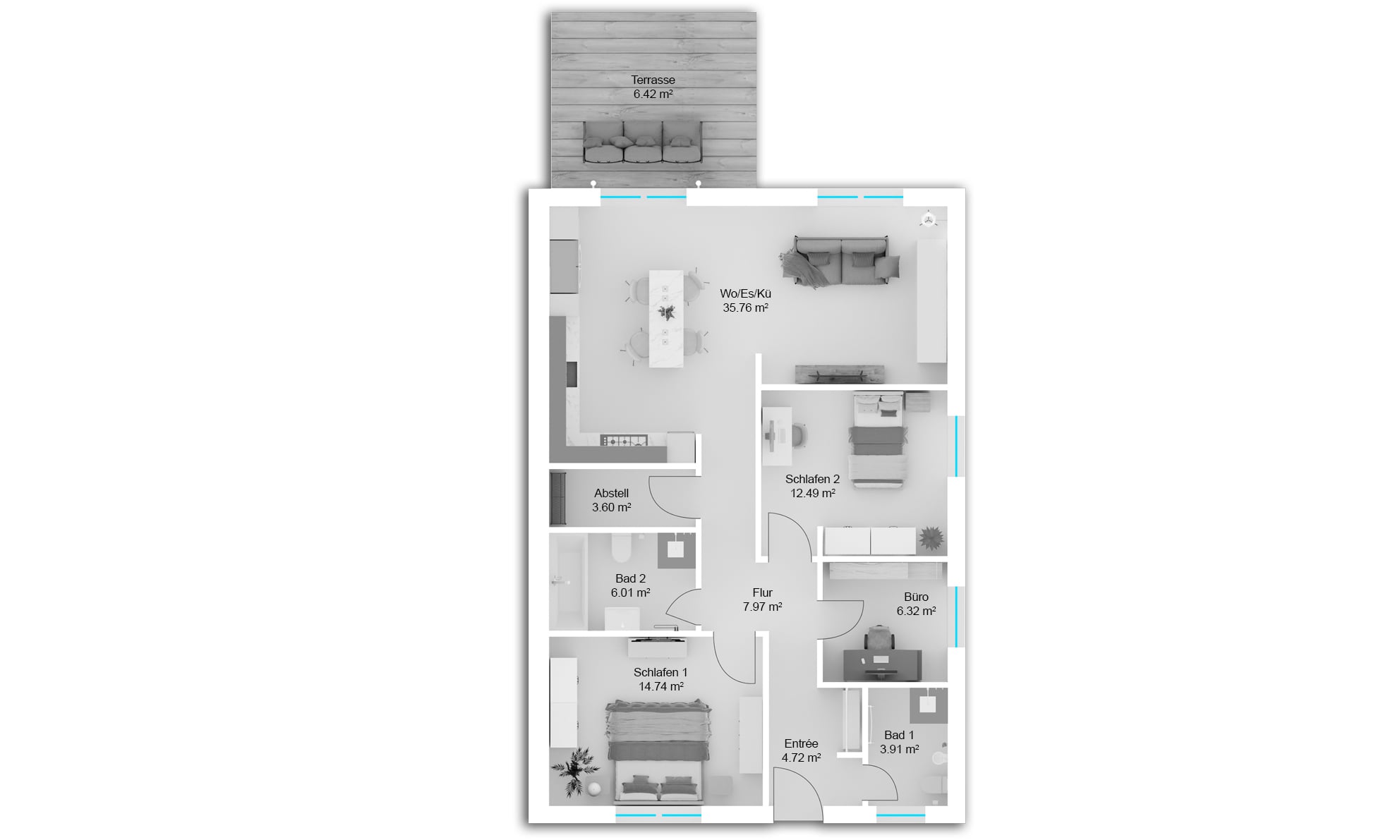
Hier finden Sie eine offene Küche- mit integriertem Esszimmerbereich, sowie ein geräumiges Wohnzimmer.
Zwei Schlafzimmer, zwei Bäder mit Dusche, ein Büro und eine wunderschöne Terrasse.

* Bitte beachten Sie: Sämtliche Fotos auf dieser Website wurden vom Plan der Wohnung dreidimensional entwickelt und zeigen eine mögliche Variante der Einrichtung. Die Visualisierung soll dazu dienen, Ihnen die Wirkung der Räume besser zu verdeutlichen. Selbstverständlich sind diese verwendeten Einrichtungsgegenstände nicht Gegenstand unseres Wohnungs-Angebots. Details und optionale Leistungen zu möglichen Ausstattungsvarianten finden Sie untenstehend. 

Zum Download bieten wir das Exposé dieser Wohnung im PDF Format. (<-- einfach Icon klicken)

Wohnung 4

Details zur Wohnung 4:

Entree: 4.72 m2
Bad: 3.91 m2
Bad 2: 6.01 m2
Schlafen: 15.17 m2
Schlafen 2: 12.91 m2
Flur: 7.97 m2
Büro: 6.32 m2
Abstell: 3.60 m2
Wo/Es/Ko: 35.85 m2
Terrasse: 6.42 m2
Gesamt: 99,91 m2

Perfekte Infrastruktur

Perfekte und moderne Wohn-/Infrastruktur ist heute bei der Entscheidung für Wohnraum nicht mehr wegzudenken. Gleiches gilt für unsere Projektentscheidungen bei VESA. Denn künftige Generationen brauchen neben ansprechendem und ausreichendem Wohnraum vor allem eine ganze Bandbreite vorhandener Infrastruktur. Gleichzeitig setzen wir Trends und möchten den unnötigen mobilen Verkehr speziell für jungen Familien auf das notwendige Minimum reduzieren. Bei unserem Projekt Treveris war dies ein weiterer ausschlaggebender Punkt für die Standortentscheidung Trier. Vor allem die extrem gute und vorhandene Grundversorgung in Reichweite...

Zu Fuß: kaum mehr als 5 min. entfernt, von unserem Wohnpark Treveris kann man sämtliche Bedürfnisse des täglichen Lebens, ob in einem großen Einkaufszentrum mit integriertem Friseur, Banken, Apotheken, Discountern/ Supermärkten wie Aldi, Lidel und Edeka erledigen.

Egal ob unser Kunde Lust zu Fuß oder per Fahrrad verspürt, kein Problem, denn das Schöne: die Erreichbarkeit sämtlicher Einkaufs- und Freizeitangebote wie auch Kitas und Schulen liegt in schneller Reichweite zu unserem Wohnpark. Aus unserer Sicht ein wegweisendes Kriterium für eine Kaufentscheidung gerade auch für umweltbewusste Kunden, gleichermaßen auch für ältere Menschen. Man braucht nicht zwingend ein Fahrzeug um am täglichen Leben teilzunehmen. Die Zielgruppen für unseren Wohnpark werden zusätzlich erweitert, da diese Wohnlage gerne bevorzugt von jungen Familien genutzt wird. Insofern passt es, dass erst kürzlich die im Ortsteil befindliche Grundschule generalsaniert wurde. Gleichzeitig ist das Angebot an Kitas vor Ort ebenfalls optimal. Wir nennen das „Grundvoraussetzungen“.

Mit unserem Projekt Treveris 2 bieten wir Ihnen nicht nur attraktive und moderne Wohnungen in verschiedenen Größen und Preisklassen an, sondern auch eine hervorragende Lage mit einer ausgezeichneten Infrastruktur. Ob Sie eine Familie gründen wollen, beruflich viel unterwegs sind oder einfach nur die Ruhe und die Natur genießen wollen, bei uns finden Sie das passende Zuhause für Ihre Bedürfnisse. Lassen Sie sich von unserem Angebot überzeugen und kontaktieren Sie uns noch heute für eine unverbindliche Besichtigung. Wir freuen uns auf Sie! 

Discounter/ täglicher Bedarf
Friseure, Ärzte, Apotheken
Banken
Schulen und Kindertagesstätten

GEG Nachweis

Das Gebäude besitzt eine effiziente thermische Hülle für einen geringen Energieverbrauch und wird durch eine umweltfreundliche Wärmepumpe beheizt, die von einer Photovoltaik Anlage unterstützt wird. 

Hier die Informationen:  Nach dem Monatsbilanzverfahren:

Benötigen Sie Hilfe?

Sicher haben Sie Fragen zu unserem Wohnungsangebot - oder möchten Sie vielleicht einen Besichtigungstermin vereinbaren?
Zögern Sie nicht, wir stehen Ihnen gerne kompetent zur Seite.
Sie erreichen mich persönlich unter: +49 6333-99993-12
oder via E-Mail: frederic.verreet@vesa-invest.de

Wir haben derzeit einige Immobilien beim Immobilienportal "immowelt.de" eingestellt.

>>>>> hier geht es direkt zum Portal und den noch verfügbaren Objekten <<<<<

Ich freue mich von Ihnen zu hören.
Herzlichst Ihr Frédéric Verreet


... und was ist alles in unseren Wohnungen im Wohnpark Treveris II. an Ausstattung bereits enthalten? 

Damit Sie sich ein umfassendes Bild über die enthaltenen Inklusiv-Produkte machen können - haben wir hier das Spektrum für Sie grob zusammengefasst. Sie können die Raumgestaltung in aller Ruhe mit unseren Raumausstattern besprechen. Diese werden Sie umfassend beraten und Ihre Wünsche und Vorlieben eingehen. Demnächst können Sie auch hier direkt die im Preis enthaltenen Inklusiv-Produkte vorauswählen.

Fliesenbeispiele KERMOS METRO

Die im Preis enthaltene Ausstattung...

Zur gehobenen Ausstattung dieser modernen Wohnungen gehöhren Bäder mit Wanne und bodengleicher Dusche, offene Küchen, bodentiefe Fenster für helle Räume und eine Fußbodenheizung.

• Audio Türsprechanlage (optional Viedeo-Anlage)
• Kupferkabelanschluss DSL mit bis zu 100 MBit bis
in jede Wohnung von Kabel Deutschland.
• Innentüren Weiß mit Edelstahl-Garnituren
• Schalter und Steckdosen weiß
• Rauchmelder in der Diele, im Kinderzimmer und im Schlafzimmer.
• Schüco Fenster mit höchsten Ansprüchen an
Sicherheit, Komfort, Energieeffizienz und Design. 3-Fach Isolierglas
mit einbruchshemmenden. Sicherheitspilskopfverriegelungen
• Aufsatzrollladensystem mit elektrischer Bedienung


VESA

BAD / SANITÄR

Exklusive Keramikausstattung von Villeroy & Boch Serie Subway 2.0, weiß und Vigour • Armaturen von Hansgrohe Serie Metris, Chrom • Schalgedämmte Abwasserrohre

Vorinstallation für Abfluss Spüle und Spülmaschine, sowie die notwendigen Kalt- Warmwasserleitung in der Küche je Wohneinheit. 1x Wasseranschluss Kalt-/Warmwasser für ein Ausgussbecken im HWR.

Die Bäder werden im Duschbereich raumhoch und im restlichen Bereich 1,20 meter hoch gefliest. Die Bäder-Planung können Sie bei unserem Partner, dem Unternehmen Elements in Merzig vollziehen. Ansprechparter: Oliver Enzweiler-Weiher

Kontaktdaten Elements GmbH | Handwerksstr. 3 | 66663 Merzig/Saarland
Badplanung: Telefon: + 49 6861831233 | eMail: oliver.enzweiler@elements-show.de

Badbeispiel

Bodenbelag / Fliesen

Vielfältige Gestaltungsmöglichkeiten bieten wir Ihnen mit den Inklusivmaterialien der Marke

KERMOS mit den Linien: • Metro • Aspen • Sirius • Positano

Die Optik der Feinsteinzeugfliesen der Serie Metro wird durch dezent aus dem Material wachsende Maserungen bestimmt. Mit einem modernen Farbspektrum und ihrer Formatvielfalt bietet Metro genügend Raum für eine moderne, puristische Boden- und Wandgestaltung. Perfekt für einen individuellen, exklusiven Wohnstil.

Für die Fliesenbemusterung steht Ihnen das Unternehmen Raab Karcher in Kaiserslautern zur Verfügung. Ansprechparter: Patric Wenzel

Kontaktdaten Raab Karcher Nl. Kaiserslautern | Merkurstr. 39 | 67663 Kaiserslautern
Fliesen: Telefon: + 49 631 5343-146 | eMail: patric.wenzel@raabkarcher.de

RAUMAUSSTATTER & HERSTELLER

Parkettboen

Darüber hinaus haben Sie freie Auswahl Parkettboden, ohne Mehrkosten, in den Varianten:

• Eiche lackiert • Bergahorn lackiert • Buche gedämpft lackiert

Bitte beachten Sie: Dekore, Bordüren, Leisten und Abschlussschienen sind nicht im Preis enthalten, können aber auf Wunsch gegen Mehrpreis geliefert werden.

Für die Holzböden steht Ihnen das Unternehmen Hein GmbH in Pirmasens zur Verfügung. Ansprechparter: Herr Hein

Kontaktdaten Hein GmbH | Berliner Ring 13 | 66955 Pirmasens
Holzböden: Telefon: + 49 6331 289 140 | eMail: info@hein-pirmasens.de

Cookie-Einstellungen